X

Pazdigrad - poslovna građevina - rezultati

I. NAGRADA

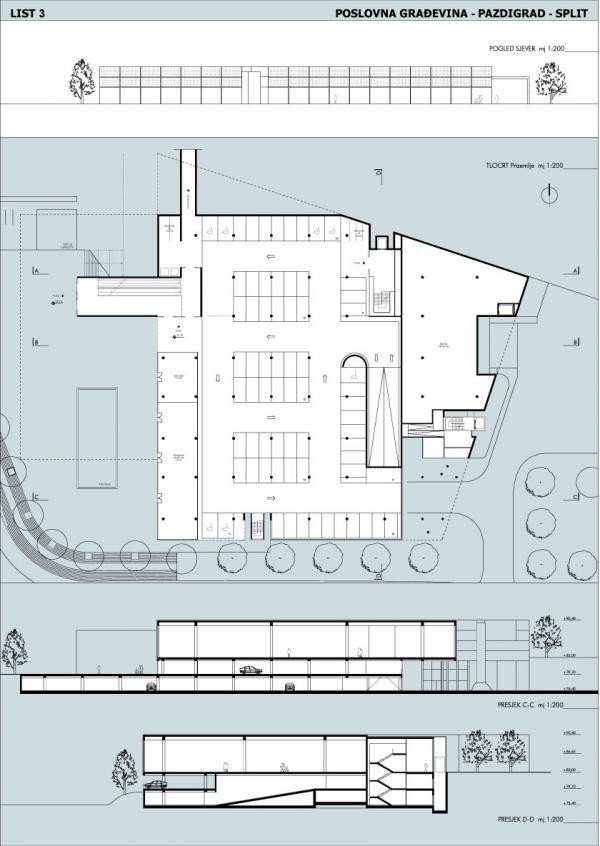
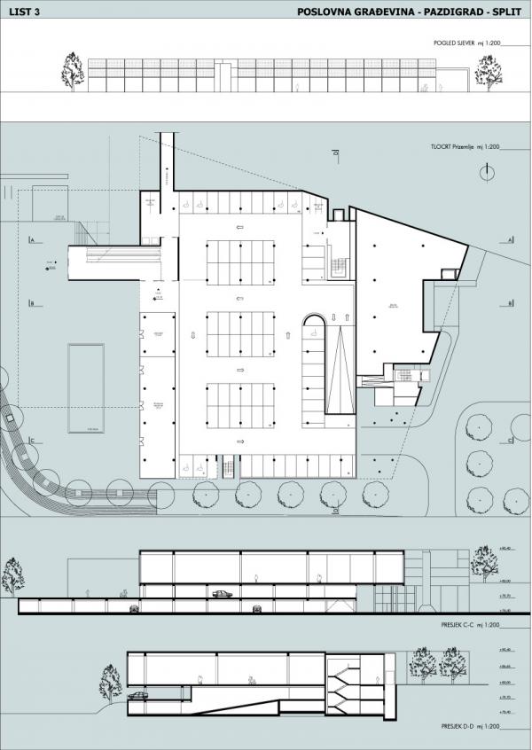
u neto iznosu 47.000,00 kuna dodjeljuje se radu pod šifrom «04»

Autor: DEAN STUBNJA, d.i.a., iz Splita

Suradnica: Jelena Merćep-Hajdić, d.i.a.

Vizualizacija: Terra Nova design studio


OBRAZLOŽENJE OCJENJIVAČKOG SUDA

Autor vješto balansira programskim odrednicama stvarajući vrlo kvalitetan javni prostor na zapadnom dijelu parcele. Traženi sadržaj u zatvorenom dijelu sklopa logično su postavljeni i prilagođeni zadanim smjernicama. Osim toga, oblikovanjem je sugeriran diskretan volumen koji se uklapa u zadani kontekst izbjegavajući predugačka pročelja tipična za slične građevine.

Ocjenjivački sud sugerira, u daljnjoj razradi, preispitati preglednost garažne rampe i radijusa zakrivljenosti kao i mogućnost povećanja parkinga na otvorenom.

 

II. NAGRADA

u neto iznosu 35.000,00 kuna dodjeljuje se radu pod šifrom «07»

Autor: DARIO GABRIĆ, d.i.a., iz Splita

Suradnici: Stela Pekas, d.i.a.

Zrinka Radunić, d.i.a.

Dragana Marinić, d.i.a.

Nikša Bilić, d.i.a.

Emil Moguš, d.i.a.

Silva Čobanov, d.i.a.

G.D.-ARH, d.o.o.

OBRAZLOŽENJE OCJENJIVAČKOG SUDA

U prostorno - funkcionalnom smislu volumen je jednostavan, dobro arhitektonski oblikovan ali je donekle neprimjeren funkciji koja je programom zadana.

Autor je uspješno postavio volumen u prostor koji iz njega izrasta ali se od njega i odvaja tako da daje prirodno provjetravanu garažu sa svih strana što je ocjenjeno kao doprinos rješenju.

Manjkavost rada je funkcionalna organizacije prostora gdje ja prostor samoposluživanja horizontalno i vertikalno razjedinjen. Nije u cijelosti tretiran odnos prema ulici Kralja Stjepana Držislava.

 

III. NAGRADA

u neto iznosu 23.000,00 kuna dodjeljuje se radu pod šifrom «03»

Autori: Velcon projekt,

JELENA ZANCHI, d.i.a., iz Splita

Avatar architecttura,

NICOLA SANTINI, d.i.a., iz Firenze, Italija

OBRAZLOŽENJE OCJENJIVAČKOG SUDA

Koncepcijsku postavku “ublažavanje monumentalnosti i nepristupačnosti trgovačkog centra” ocjenjivački sud smatra najkvalitetnijim elementom u predloženom rješenju.

Razrada te postavke rezultirala je prijedlogom oblikovanja koje je sukladno suvremenim arhitektonskim trendovima.

Ostali elementi rješenja: funkcionalna organizacija, rješenje prometnih i pješačkih tokova nisu sukladni kvaliteti temeljne koncepcije postavke, odnosno te elemente autor rješava na klasičan način, što je ocjenjivački sud interpretirao slabijim dijelom rješenja.