X

Pravni Fakultet

OTVORENI, JEDNOSTUPANJSKI NATJEČAJ ZA IZRADU IDEJNOG RJEŠENJA PROSTORNE JEDINICE 6 (PRAVNOG FAKULTETA) U SVEUČILIŠNOM KAMPUSU «VISOKA» U SPLITU
Registracijski broj: 36-08-ST-AU
Sveučilište u Splitu i Društvo arhitekata Splita objavljuju

 

REZULTAT NATJEČAJA
Ocjenjivački sud koji je djelovao u sastavu: prof.dr.sc. Ivan Pavić (predsjednik), prof.dr.sc. Želko Domazet, prof.dr.sc. Anita Kurtović Mišić, Ante Kuzmanić, d.i.a. (dopredsjednik), Vasa Perović, d.i.a., Saša Begović, d.i.a., Damir Rako, d.i.a., na 4. plenarno sjednici održanoj dana 06. lipnja 2008. godine donio je većinom glasova slijedeće odluke:

I. Nagrada

u neto iznosu 80.000,00 kuna dodjeljuje se radu pod šifrom «13»

Autor:
njirić+ arhitekti d.o.o., iz Zagreba

Arhitekti:
prof. Hrvoje Njirić, dipl.ing.arh.
Nevena Kuzmanić, dipl.ing.arh.
Erich Ranegger, aps.arh.
Jelena Botteri, dipl.ing.arh.
Fuminori Nosaku, M.Arch

Suradnici:
Mladen Freškura, dipl.ing. dipl.diz.
Ljiljana Besednik, dipl.ing.arh.
Jurica Barišić - vizualizacija
Saša Perušinović - vizualizacija

OBRAZLOŽENJE OCJENJIVAČKOG SUDA

Autor preispituje urbanističke postavke cjelovitog sveučilišnog kampusa tragajući za novim identitetom i zajedničkim sadržajima.

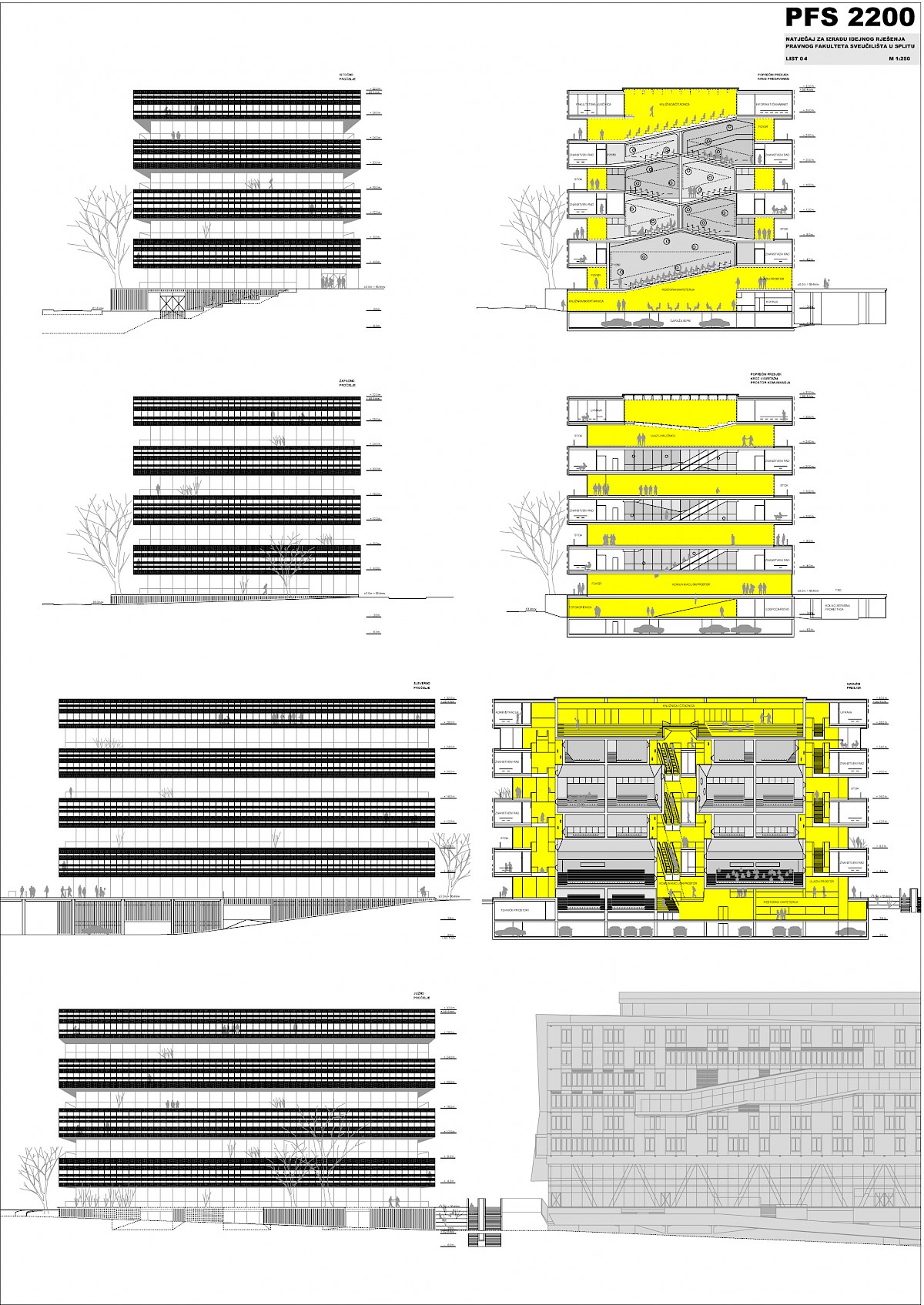
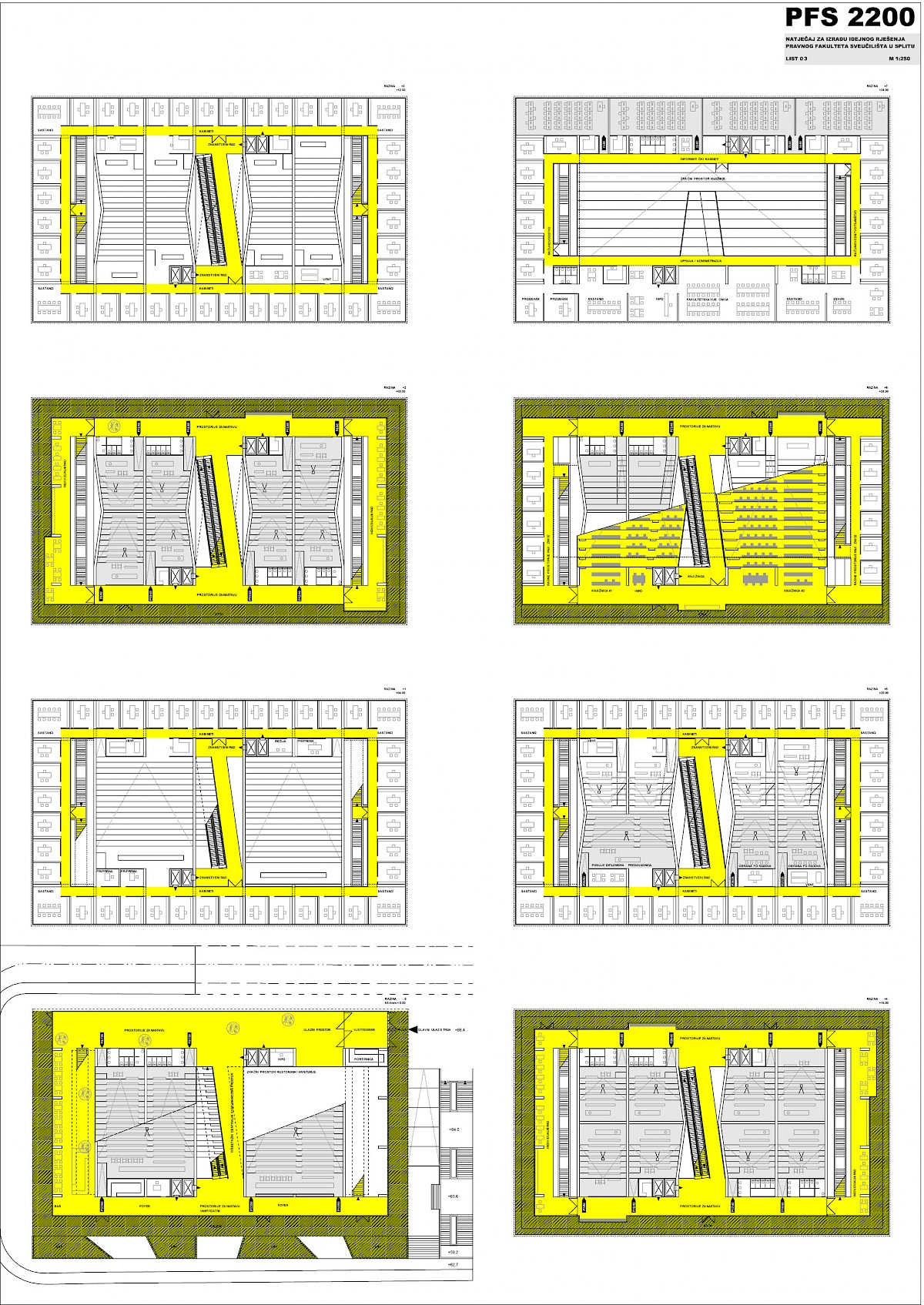
Koncept zgrade Pravnog fakulteta je jasan i izrazito fleksibilan. Funkcionalnom dispozicijom izmjenjuje se zatvoreni i otvoreni prostori unutar specifičnog fasadnog platna.

Autorski stav je izrazito kompleksan i proturječan artikulirajući zgradu fakulteta kao novi kulturološki čin u urbanoj matrici kampusa.

Preporuča se u daljnjoj razradi preispitati dimenzije prostora nastavničkog kabineta te jasniji odabir materijala pročelja.

II. Nagrada

u neto iznosu 50.000,00 kuna dodjeljuje se radu pod šifrom «05»

Autor:
LEA PELIVAN, dipl.ing.arh. i
TOMA PLEJIĆ, dipl.ing.arh. / STUDIO UP

Suradnici:
Marina Zajec, dipl.ing.arh.
Antun Sevšek, dipl.ing.arh.
Robert Tičić (vizualizacije)

OBRAZLOŽENJE OCJENJIVAČKOG SUDA

Izuzetno jasna koncepcija, u arhitektonsko funkcionalnom smislu daje doprinos razmišljanju o organiziranju javnog prostora, što se posebno očituje kroz presjek. Rad nije jednako kvalitetan u urbanističkoj impostaciji i odnosu prema topografiji čemu naročito pridonosi tretiranje ulazne etaže. Visina objekta se mjeri od najniže kote uređenog terena uz objekt, što žiri nije uzeo kao razlog za eliminaciju rada. Prezentacija pročelja opteretila je oblikovni koncept objekta.

III. Nagrada

u neto iznosu 30.000,00 kuna dodjeljuje se radu pod šifrom «09»

Autor:
IVICA BRNIĆ, Dipl. Arch. ETH SIA, iz Lugana, Švicarska

Suradnici:
Daniel Sutovsky, Dipl. Arch. ETH SIA
Felix Siegrist, Dipl. Arch. ETH
Luca Pestalozzi, Kand. Arch.

OBRAZLOŽENJE OCJENJIVAČKOG SUDA
Rad program novog fakulteta koncipira kao palaču skoro klasične provenijencije, postavljene na postament.

Gradnju prostorne konfiguracije na funkciju kontrasta žiri je ocijenio kao najuspješniji dio projekta. Racionalno zasnovani programski elementi – predavane, kabineti, knjižnica i drugo se nižu oko kompleksnog, skoro piranezjiski zasnovanog halla. Taj prostor je srce projekta. Objekt je žiri ocijenio kao važan u unutarnjoj koncepciji, slab na urbanističkoj (izdvojenost volumena na postament) i u koncepciji fasade, koja ima repetitivne elemente betonske čipke, prekinute monumentalnim procjepima sa referencom na meandre Julija Knifera, koja nije ocjenjena kao primarna arhitektonska artikulacija programa.

Jedan od dva jednakovrijedna otkupa

u neto iznosu 10.000,00 kuna dodjeljuje se radu pod šifrom «07»

Autori:
DARIO GABRIĆ, dipl.ing.arh.

DRAGANA MARINIĆ, dipl.ing.arh.
EMIL MOGUŠ dipl.ing.arh.
STELA PEKAS dipl.ing.arh.
IVANA GABRIĆ, dipl.ing.arh., svi iz Splita

OBRAZLOŽENJE OCJENJIVAČKOG SUDA
Rad slijedi urbanističku matricu kampusa, i svojim konceptom horizontalnog i vertikalnog volumena «prirodno» se uklapa i završava zonu 3 fakulteta.

Rad konzekventno ispunjava, konceptom zadani volumen, što ga i ograničava jer time velika količina različitih sadržaja na jednoj etaži smanjuje veličine javnih (zajedničkih) prostora na svim etažama.

Kvaliteta rada je i u konzekventno provedenom pročelju – čipki, koja je zamišljena kao betonski prefabricirani šuplji blok. Kvalitetan doprinos je takvo suvremeno promišljanje pročelja.

Jedan od dva jednakovrijedna otkupa

u neto iznosu 10.000,00 kuna dodjeljuje se radu pod šifrom «10»

Autori:
BRANKA MIMICA, dipl.ing.arh.
LOVRE PETROVIĆ, ing.arh., oboje iz Splita

OBRAZLOŽENJE OCJENJIVAČKOG SUDA

Jednostavnost i racionalnost u rješavanju programskih sadržaja, postavljenih u konstrukciji ekonomičnog modularnog rastera od 10 m, omogućava visoku fleksibilnost funkcije od podzemne garaže, preko javnog partera-prizemlja, do individualnih radnih prostora.
«Memorijski» element oblikovnog vertikalnog brisoleja nije najzahvalniji odabir za južno i sjeverno pročelje. Rad je dobro izbalansirao odnos bruto i neto površina.
 

TAJNIK NATJEČAJA
Neven Mladinić d.i.a.