X

Rezultati natječaja za izradu idejnog arhitektonsko-urbanističkog rješenja uređenja Peškere u Makarskoj

Javni, opći, u jednom stupnju, anonimni, anketni i za realizaciju, I stupnja složenosti

N A T J E Č A J

izradu idejnog arhitektonsko-urbanističkog rješenja uređenja

PEŠKERE U MAKARSKOJ

Oznaka iz Plana nabave Raspisivača natječaja: E-PN 02/22

Registarski broj natječaja Hrvatske komore arhitekata: 123-22/MA-AU/NJN

RASPISIVAČ I INVESTITOR natječaja GRAD MAKARSKA, Obala kralja Tomislava 1, 21300 Makarska; OIB: 53515145212; telefon: +385 21 608 407; e-mail: grad@makarska.hr; www.makarska.hr; odgovorna osoba: Zoran Paunović, gradonačelnik; osoba za kontakt: Mira Roso

i

PROVODITELJ I ORGANIZATOR natječaja Društvo arhitekata Splita (DAS), Starčevićeva 24c, 21000 Split, koje zastupa predsjednica, Daša Gazde, dipl.ing.arh. OIB: 88950229770, e-mail: info@d-a-s.hr, odgovorna osoba: Daša Gazde, dipl.ing.arh.

 

OBJAVLJUJU REZULTATE NATJEČAJA

 

Na natječaj koji je trajao od 28.04.2022. do 12.07.2022. pristiglo je 14 radova, od toga u propisanom roku prema točki 3.4 Uvjeta natječaja, do 12.07.2022. do 16:00h 14 radova.

Ocjenjivački sud u sastavu: Saša Begović, dipl.ing.arh., predstavnik raspisivača, predsjednik OS, Mirko Buvinić, dipl.ing.arh., predstavnik provoditelja, Jurij Sadar, u.d.i.a., predstavnik provoditelja, Krešimir Damjanović, dipl.ing.arh., predstavnik provoditelja i Zoran Paunović, gradonačelnik, predstavnik raspisivača s većinom glasova (3:2), na 4. sjednici održanoj 20. kolovoza 2022., je donio sljedeće odluke:

1.  NAGRADA U NETO IZNOSU OD  125.000,00 kn - rad pod šifrom “07”

Autori:
ATMOSFERA™
Bernarda Silov
Davor Silov
Kristina Rogić
Mateja Rogulj
Małgorzata Łodzińska

PLAKATI

 

2. NAGRADA U NETO IZNOSU OD 78.125,00 kn - rad pod šifrom “02”

Autori:
Maja Vujnović
Tatjana Zahra
Sonja Mimica Defar
Issa Bakotić
Andro Banovac
Franz Jozef Zahra
Darko Ivanovski

Suradnica:
Marina Stenek, dipl.ing.bio. univ.spec.teh.

PLAKATI

 

3. NAGRADA U NETO IZNOSU OD 46.875,00 kn - rad pod šifrom “09”

Autori:
Mathilde Etchelecu
Marta Mila Pascual
Stanislava Odrljin
Ariana Secchi Tarres
Blanca Carolina Zegakra Tipismana

PLAKATI

 

4. NAGRADA U NETO IZNOSU OD 37.500,00 kn    - rad pod šifrom “01”

Autori:
Marko Murtić
Nada Milišić
Mak Murtić
Viktor Vdović

PLAKATI

 

5. NAGRADA U NETO IZNOSU OD 25.000,00 kn - rad pod šifrom “13”

Autori:
Ivana Krmpotić Romić
Maja Merlić
Filip Romić
Krešimir Romić

PLAKATI

 

6.MJESTO - rad pod šifrom “04”

Autori:
Dora Ivančan
Lucia Kalogjera
Matija Vinković
Dario Špoljarić


7.MJESTO - rad pod šifrom “06”

Autori:
Maja Milutin
Viktorija Bogdanova
Hristijan Ivanovski
Aleksandar Simjanoski
Danica Spasevska

 

NATJEČAJNE RADOVE POGLEDAJTE  OVDJE

 

IZRAĐIVAČ NATJEČAJNOG ELABORATA je No.638 d.o.o., Vojnovićeva 21, Zagreb, OIB: 52465166500
Stručni tim: Maša Medoš, mag.ing.arch., A4387 i Klara Nikšić, mag.ing.arch., A4503

Za ocjenu radova imenovan je bio Ocjenjivački sud u sastavu od pet (5) članova:

Predsjednik ocjenjivačkog suda:
Saša Begović, predsjednik OS, dipl.ing.arh., predstavnik provoditelja

Članovi ocjenjivačkog suda:    
Mirko Buvinić, dipl.ing.arh., predstavnik provoditelja  
Jurij Sadar, u.d.i.a., predstavnik provoditelja  
Krešimir Damjanović, dipl.ing.arh., predstavnik provoditelja  
Zoran Paunović, gradonačelnik/ predstavnik raspisivača

Zamjenica člana OS-a:
Antonia Radić Brkan, zamjenica gradonačelnika

Stručna savjetnica:
Marta Sumić , dipl. ing. krajobrazne arhitekture

Tehnička komisija:
Petra Jerković, dipl.ing.arh., predstavnica provoditelja
Nina Kovačević, dipl.ing.arh., predstavnica provoditelja

Tajnica natječaja:
Maša Medoš, dipl.ing.arh., predstavnica provoditelja

SVRHA I CILJ PROVEDBE JAVNOG NATJEČAJA
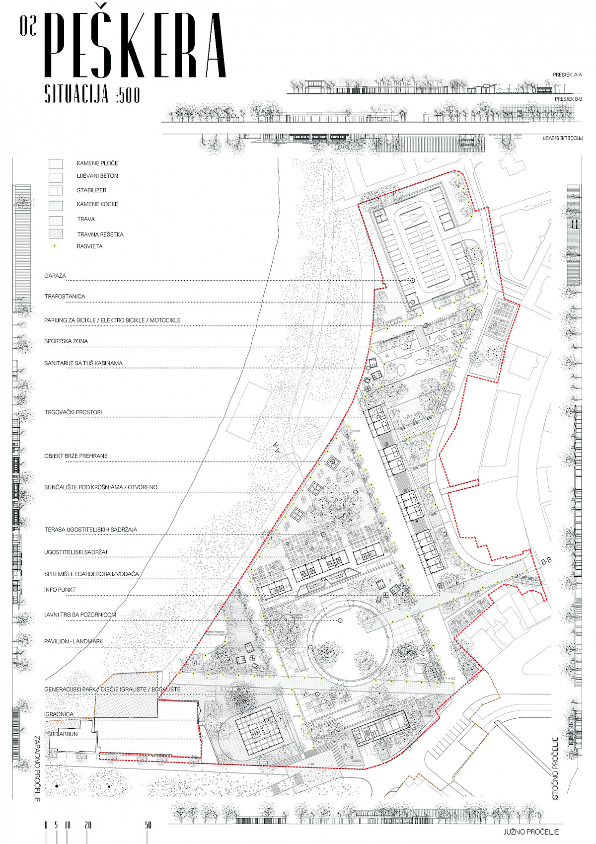
Cilj natječaja je dobivanje najboljeg urbanističko-arhitektonskog rješenja kojim će se sagledati cjelovito uređenje prostora Peškere, uskladiti današnje urbane, socijalne, društvene potrebe građana i turista s povijesnom urbanističko-arhitektonskom strukturom i krajolikom te omogućiti funkcionalan, kvalitetan i sadržajno kreativan boravak građana i gostiju na otvorenom javnom gradskom prostoru.
Drugi opći cilj je sagledavanje prostornih mogućnosti u povezivanju Peškere, poluotoka Sveti Petar i rive kao specifični akcent na lokaciju i povezivanje povijesne jezgre s glavnom gradskom plažom i dijelom grada sa smještajnim kapacitetima.

Ciljevi natječaja:
•    Gradski prostor za okupljanje te odvijanje kulturnih i drugih događanja s ciljem uspostavljanja umreženog sustava otvorenih površina, jačanja uloge povezivanja područja plaže s centrom grada
•    Parterno uređenje čitavog prostora u zoni obuhvata
•    Rješenje prostora za ugostiteljske i komercijalne sadržaje
•    Rješenje i uređenje ugostiteljskih terasa
•    Rješenje sportsko - rekreacijskih sadržaja s ciljem ustupanja prostora pješacima, biciklistima i ostalim rekreativcima
•    Osmišljavanje prostora za umjetničke instalacije i skulpture (multifunkcionalnost, slobodno vrijeme, kultura, baština)
•    Rješenje prometa za hitne intervencije i dostavu
•    Rješenje prometa u mirovanju
•    Rješenje javne rasvjete (energetski učinkovite)
•    Hortikulturno uređenje s ciljem očuvanja i unapređenja zelenog karaktera i identiteta grada, smanjenja klimatskih promjena u urbanoj sredini
•    Analiza i osmišljavanje elemenata urbane opreme (univerzalni dizajn prilagođen osobama s invaliditetom s ciljem poticanja socijalne kohezije i inkluzije)

Rješenjem treba poštivati i valorizirati kulturno-povijesne vrijednosti prostora i uskladiti ih sa sadašnjim i budućim potrebama urbanog života grada.
Radi ispitivanja optimalnih mogućnosti iskorištenja predmetne lokacije, a u skladu s odredbama, Prvonagrađeno rješenje, u dijelu za realizaciju, služit će kao podloga za izradu projektne dokumentacije.
Daljnje aktivnosti na oblikovanju prostora Peškere trebale bi biti usmjerene na prepoznavanje potencijala za jačanje održivog urbanog razvoja, u skladu sa zakonskim okvirom i temeljnim razvojnim preporukama Europske unije, Republike Hrvatske.

Raspisivač javnog natječaja namjerava sklopiti ugovor o javnim uslugama na temelju pregovaračkog postupka javne nabave bez prethodne objave s autorom prvonagrađenog rada.

Natječaj je proveden prema Pravilniku o natječajima s područja arhitekture, urbanizma, unutarnjeg uređenja i uređenja krajobraza (NN 85/14) čijih su se odredbi svi sudionici natječaja bili dužni pridržavati.

Za Ocjenjivački sud:

Maša Medoš, mag.ing.arch., tajnica natječaja